• Featured
  • For rent
  • 16-Jan-2026

Commercial Building for Rent in Kuttiadi Kozhikode

Kozhikode, Kuttiadi, Thottilpalam

70 K

Built up Area: 2600 sq.ft.

Description

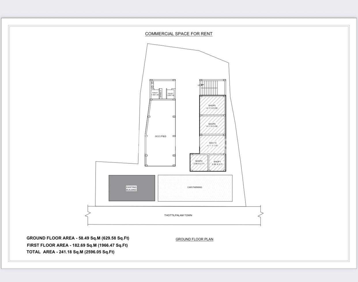
59 squire meeter ground floor 183 sq meter first floor shop building for rent with covered roof top.200 sq meter roof top also can use ; Ideal for big textiles or those dealers marketing with the coverage of kozikkode eastern part and wayanad. Shop is in Thottilpalam town .

Facts and Features

Type

Commercial Building

Built Up Area

2600 sq.ft.

Plot Area

8 cents

Carpet Area

241.18 sq.m.

washrooms

Avaliable

Parking

Avaliable

Status

Ready to move

Additional Details

Property ID
TR799715
Ownership Status
Single
Availability Status
Ready to move
Age of property
5-10
Washrooms
Avaliable
Parking
Avaliable
Total Floors
2
Close to Shopping Mall Close to Supermarket/Grocery Stores

Location

State
Kerala
District
Kozhikode
City
Kuttiadi
Locality
Thottilpalam
Zip / Postal Code
7000000
Landmark
Micro lab Thottilpalam
Full Address
In front of SH 57 - Thottilpalam vadakara road

Similar Properties

Commercial Building Available for Rent in Thamarasseri Kozhikode

Kozhikode, Thamarasseri, Opp. KSRTC DIpot Karadi, Thamarassery

  • 1700 sq.ft.
  • Get Contact Detail
  • Ready to move

Commercial Building Available for Rent in Sarovaram Kozhikode

Kozhikode, Calicut City, St Vincent Colony road Sarovaram

  • 13000 sq.ft.
  • Get Contact Detail
  • Ready to move

7000 Sq.ft Commercial Building Available for Rent in Cheruvannur Kozhikode

Kozhikode, Calicut City, CHERUVANNUR

  • 7000 sq.ft.
  • Get Contact Detail
  • Ready to move

Commercial building available for Rent in Kulangara, Mukkam, Kozhikode

Kozhikode, Mukkam, Kulangara

  • 680 sq.ft.
  • Get Contact Detail
  • Ready to move

Commercial Building available for Rent in West Nadakkavu Kozhikode

Kozhikode, Calicut City, West Nadakkavu Opposite Thanveer Complex

  • 360 sq.ft.
  • Get Contact Detail
  • Ready to move

Commercial others available for Rent in Modakkallur Kozhikode

Kozhikode, Kozhikode, Modakkallur, Near Malabar Medical College, ulliyery

  • 800 sq.ft.
  • Get Contact Detail
  • Ready to move

Commercial Space for Rent in Puthiyapalam Kozhikode

Kozhikode, Calicut City, Puthiyapalam

  • 673 sq.ft.
  • Get Contact Detail
  • Ready to move

Commercial Building for rent at Mavoor Kohikode

Kozhikode, Mavoor,

  • 300 sq.ft.
  • Get Contact Detail
  • Ready to move